隨著電子技術的飛速發展,電子元器件的小型化、微型化、BGA、間距為0.3mm~0.5mm高密度的芯片越來越普遍,對電子焊接技術的要求也就越來越高。雖然現在有了更精密的貼片機可以代替人工焊接,但影響焊接質量的因素太多。本文將從貼片焊接的角度,介紹了幾點PCB設計時需要注意的要點,根據經驗,如果未按照這些要求,很有可能造成焊接質量不高,虛焊和甚至在返修PCB的時候損壞焊盤或電路板。
一、影響PCB焊接質量的因素
從PCB設計到所有元件焊接完成為一個質量很高的電路板,需要PCB設計工程師乃至焊接工藝、焊接工人的水平等諸多環節都有著嚴格的把控。主要有以下因素:PCB圖、電路板的質量、器件的質量、器件管腳的氧化程度、錫膏的質量、錫膏的印刷質量、貼片機的程序編制的精確程度、貼片機的貼裝質量、回流焊爐的溫度曲線的設定等等因素。 SMT貼片焊接廠本身無法逾越的環節就是PCB畫圖的環節。由于做電路設計的人往往不焊電路板從而無法獲得直接的焊接經驗,不知道影響焊接的各種因素;而SMT貼片焊接廠的工人不懂PCB畫板設計,他們只管完成生產任務,沒有心思、更沒有能力分析造成不良焊接的原因。由于這兩方面的人才各司其職,難以有機結合。
二、畫PCB圖時的建議
下面我就PCB畫圖的環節給畫PCB圖的設計布線工程師們提出一些建議,希望在畫圖的過程中能避免出現影響焊接質量的各種不良畫法。將主要以圖文的形式介紹。
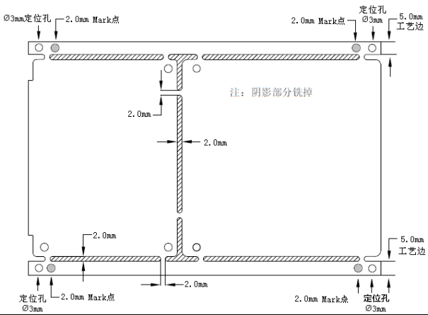
1、關于定位孔:PCB板的四角要留四個孔(最小孔徑?2.5mm),用于印刷錫膏時定位電路板。要求X軸或Y軸方向圓心在同一軸線上,如下圖:
2、關于Mark點:用于貼片機定位。PCB板上要標注Mark點,具體位置:在板的斜對角,可以是圓形,或方形的焊盤,不要跟其它器件的焊盤混在一起。如果雙面有器件,雙面都要標注。 設計PCB時,請注意以下幾點:
a、Mark點的形狀如以下圖案。
(上下對稱或左右對稱)
b、A的尺寸為2.0mm。
c、從Mark點的外緣離2.0mm的范圍內,不應有可能引起錯誤的識別的形狀和顏色變化。(焊盤、焊膏)
d、Mark點的顏色要和周圍PCB的顏色有明暗差異。
e、為了確保識別精度,Mark點的表面上電鍍銅或錫來防止表面反射。對形狀只有線條的標記,光點不能識別。 如下圖所示:
3、關于留5mm邊:畫PCB時,在長邊方向要留不少于3mm的邊用于貼片機運送電路板,此范圍內貼片機無法貼裝器件。此范圍內不要放置貼片器件。如圖:
雙面有器件的電路板應考慮到第二次過回流時會把已焊好的一面靠邊的器件蹭掉,嚴重時會蹭掉焊盤、毀壞電路板。如下圖所示:
所以建議芯片少的一面(一般為Bottom面)的長邊離邊5mm范圍內不要放置貼片器件。如果確實由于電路板面積受限,可以在長邊加工藝邊,參見本文17條“關于拼板的建議及加工藝邊”。
4、不要直接在焊盤上過孔:直接在焊盤上過孔的缺陷是在過回流時錫膏熔化后流到過孔內,造成器件焊盤缺錫,從而形成虛焊。如圖:
5、關于二極管、鉭電容的極性標注:二極管、鉭電容的極性標注應符合行規,以免工人憑經驗焊錯方向。如圖:
6、關于絲印和標識:請將器件型號隱藏。尤其是器件密度高的電路板。否則,眼花繚亂影響找到焊接位置。如下圖:
也不要只標型號,不標標號。如下圖所示,造成貼片機編程時無法進行。
絲印字符的字號不應太小,以至于看不清。字符放置位置應錯開過孔,以免誤讀。
7、關于IC焊盤應延長:SOP、PLCC、QFP等封裝的IC畫PCB時應延長焊盤,PCB上焊盤長度=IC腳部長度×1.5為適宜,這樣便于手工用烙鐵焊接時,芯片管腳與PCB焊盤、錫三者熔為一體。如圖:
8、關于IC焊盤的寬度:SOP、PLCC、QFP等封裝的IC,畫PCB時應注意焊盤的寬度,PCB上焊盤a的寬度=IC腳部寬度(即:datasheet中的Nom.值),請不要增寬,保證b(即兩焊盤間)有足夠的寬度,以免造成連焊。如圖:
9、放置器件不要旋轉任意角度:由于貼片機無法旋轉任意角度,只能旋轉90℃、180℃、270℃、360℃。如下圖B 旋轉了1℃,貼片機貼裝后器件管腳與電路板上的焊盤就會錯開1℃的角度,從而影響焊接質量。
10、相鄰管腳短接時應注意的問題:下圖a的短接方法不利于工人識別該管腳是否應該相連,且焊接后不美觀。如果畫圖時按圖b、圖c的方法短接并加上阻焊,焊接出來的效果就不一樣:只要保證每個管腳都不相連,該芯片就無短路現象,而且外觀也美觀。
11、關于芯片底下中間有焊盤的問題:芯片底下中間有焊盤的芯片畫圖時如果按芯片的封裝圖畫中間的焊盤,就容易引起短路現象。建議將中間的焊盤縮小,使它與周圍管腳焊盤之間的距離增大,從而減少短路的機會。如下圖:
12、厚度較高的兩個器件不要緊密排在一起:如下圖所示,這樣布板會造成貼片機貼裝第二個器件時碰到前面已貼的器件,機器會檢測到危險,造成機器自動斷電。
13、關于BGA:由于BGA封裝比較特殊,其焊盤都在芯片底下,外面看不到焊接效果。為了返修方便,建議在PCB板上打兩個 Hole Size:30mil 的定位孔,以便返修時定位(用來刮錫膏的)鋼網。 溫馨提示:定位孔的大小不宜過大或過小,要使針插入后不掉、不晃動、插入時稍微有點緊為宜,否則定位不準。如下圖:
而且建議BGA周圍一定的范圍內要留出空地別放置器件,以便返修時能放得下網板刮錫膏。
14、關于PCB板的顏色:建議不要做成紅色。因為紅色電路板在貼片機的攝像機的紅色光源下呈白色,無法進行編程,不便于貼片機進行焊接。
15、關于大器件下面的小器件:有的人喜歡將小的器件排在同一層的大器件底下,比如:數碼管底下有電阻,如下圖:
如此排版會給返修造成困難,返修時必須先拆數碼管,還有可能造成數碼管損壞。建議將數碼管底下的電阻排到Bottom面,如下圖:
16、關于覆銅與焊盤相連影響熔錫:由于覆銅會吸收大量熱量,造成焊錫難以充分熔化,從而形成虛焊。如圖所示:
圖a中器件焊盤直接與覆銅相連;圖b中50Pins連接器雖然沒直接與覆銅相連,但由于四層板的中間兩層為大面積覆銅,所以圖a、圖b都會因為覆銅吸收大量熱量而造成錫膏不能充分熔化。圖b中50Pins連接器的本體是不耐高溫的塑料,若溫度設定高了,連接器的本體會熔化或變形,若溫度設定低了,覆銅吸收大量熱量而造成錫膏不能充分熔化。因此,建議焊盤與大面積覆銅隔離。如圖所示:
17、關于拼板的建議及加工藝邊:
三、總結
現如今,能用軟件進行畫圖,布線并設計PCB的工程師越來越多,但是一經設計完成,并能很好的提高焊接效率,作者認為需要重點注意以上要素。并且培養良好的畫圖習慣,能夠很好的以加工工廠進行很好的溝通,是每一個工程師都要考慮的。
深圳宏力捷推薦服務:PCB設計打樣 | PCB抄板打樣 | PCB打樣&批量生產 | PCBA代工代料
